ΓΟΥΒΕΣ

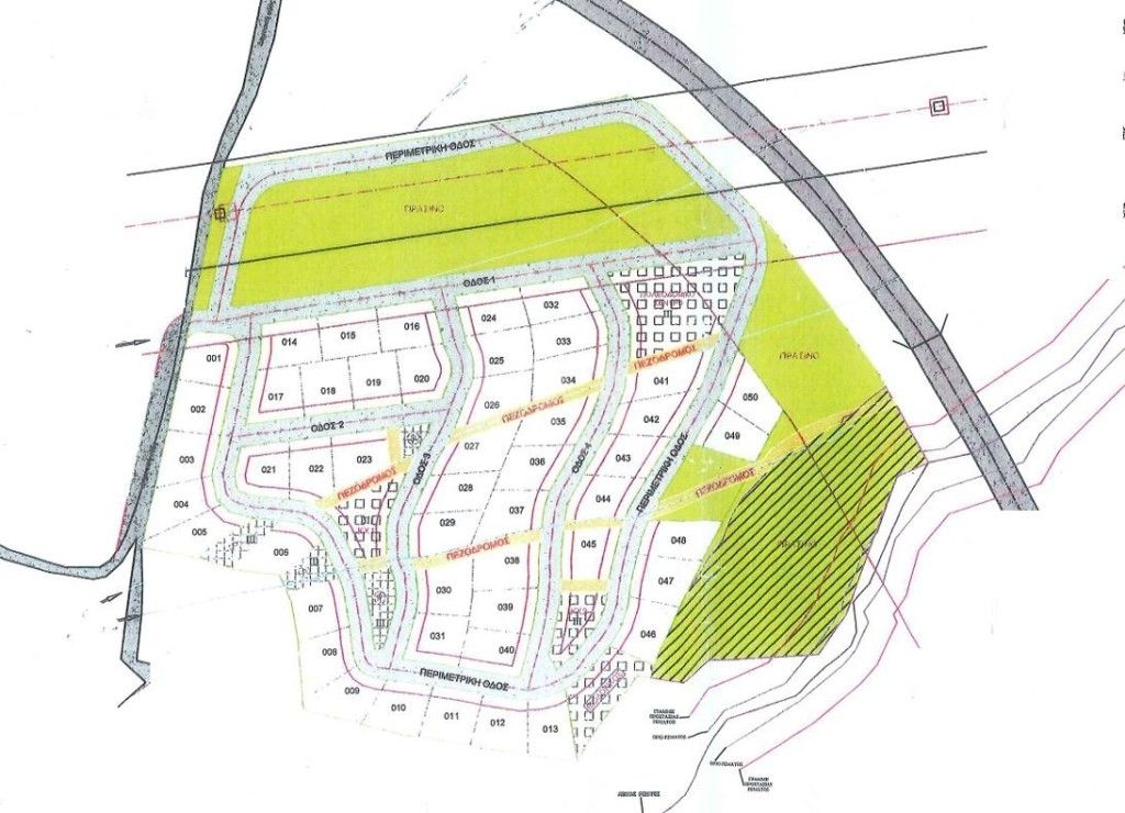
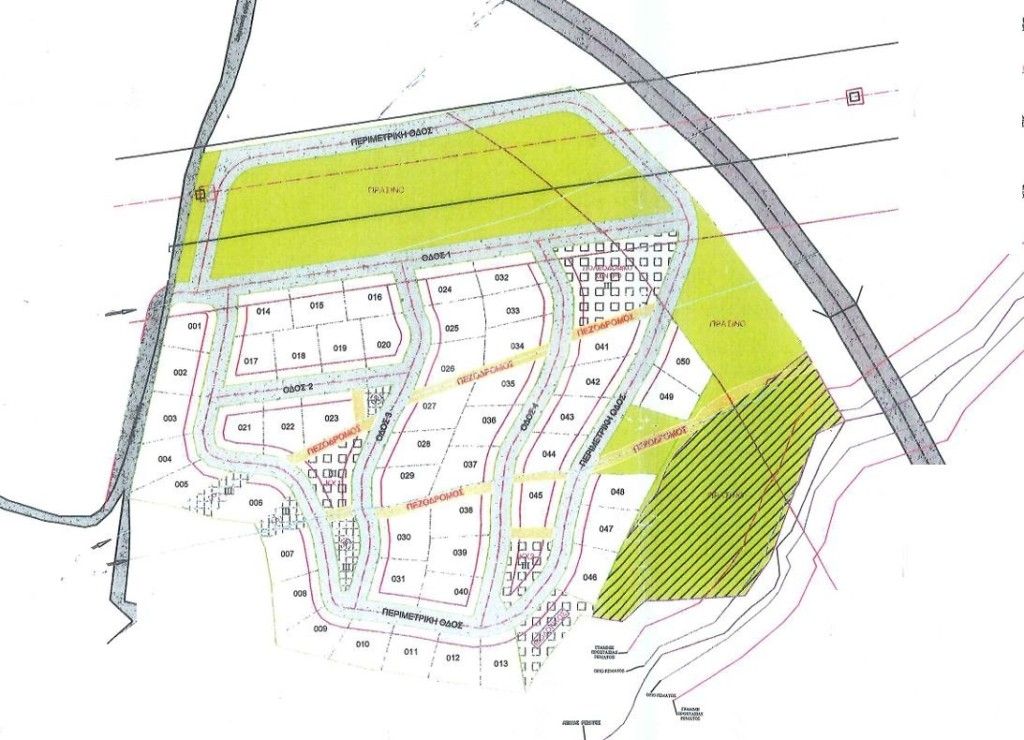
ΓΟΥΒΕΣ πωλείται εκταση 50 στρεμ στο ύψος του Αποσελέμη νότια της νέας εθνικής οδού με έγκριση ιδιωτικής πολεοδόμησης για 50 κατοικίες 120τμ συν το υπόγειο η κάθε μία . Το οικόπεδο είναι αμφιθεατρικό με θέα θάλασσα .

Απόσταση απο θάλασσα 1.500 μέτρα .
Απόσταση απο Ηράκλειο 20χιλ
Απόσταση απο Νεο αεροδόμιο 20χιλ

Επικοινωνήστε με τον αγγελιοδότη
Κωδ. Αγγελίας ΑΚ397852
Κωδ. Αναφοράς 3723
Τύπος Πώληση
Κατηγορία Οικόπεδα
Περιοχή Ηράκλειο, Γούβες
Εμβαδόν 53633τ.μ.
Τιμή € 1.200.000
Τιμή / τ.μ. € 22,37
ΠΕΡΙΣΣΟΤΕΡΑ
Εμβαδό (τ.μ.):
53633
Συντελεστής Δόμησης:
0,11
Κλίση:
Αμφιθεατρικό
Ανανεώθηκε:
Πέμπτη, 30 Απρ 2026
Επισκέψεις:
648