ΘΕΡΙΣΟΣ

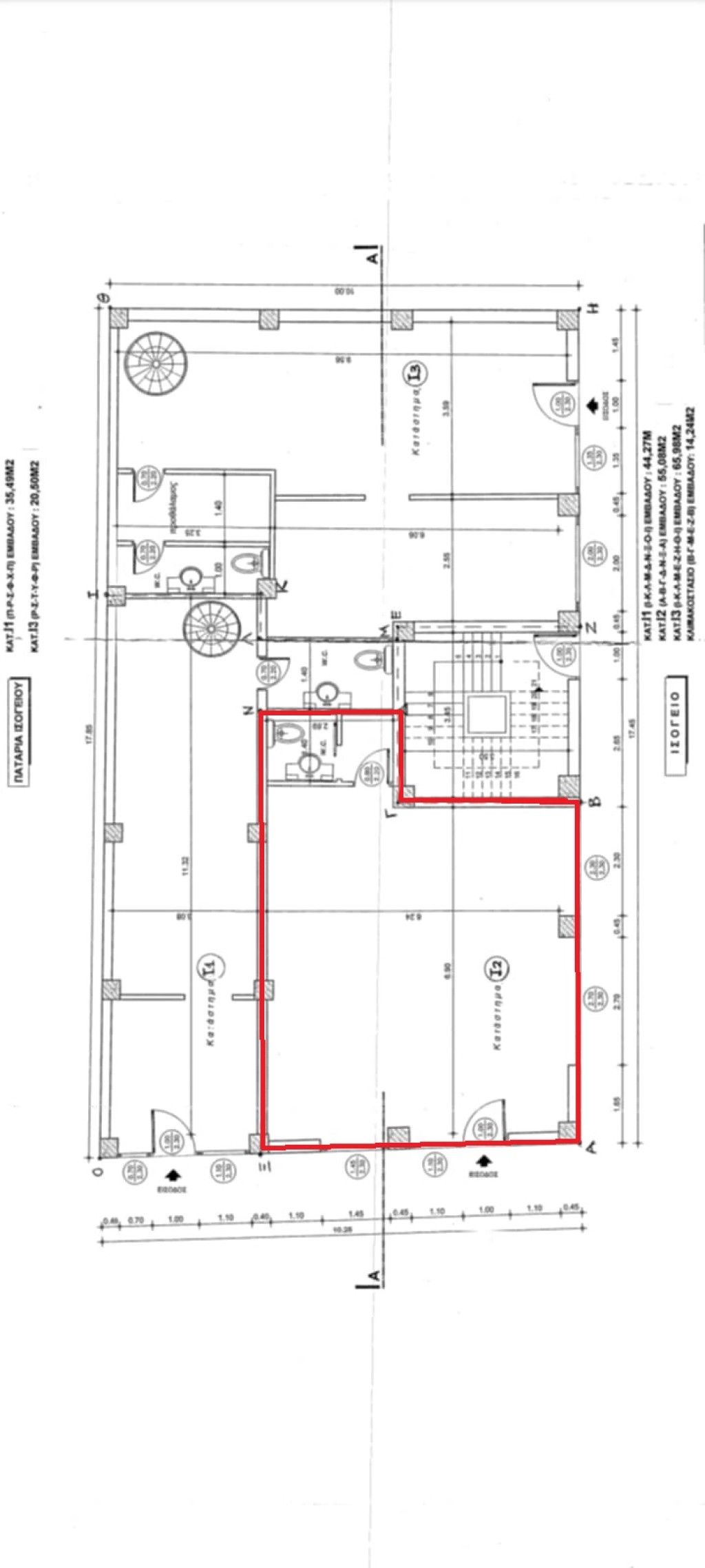
100μ. από Θερίσου και Λεωφ. 62 Μαρτύρων και πλησίον Λεωφ. Μίνωος, πωλείται ισόγειο γωνιακό κατάστημα, εμβαδού 55 τ.μ. Είναι μισθωμένο έως το 2030. Τιμή : 130.000€ ΠΕΑ: Ζ'

Επικοινωνήστε με τον αγγελιοδότη
Κωδ. Αγγελίας ΑΚ414972
Κωδ. Αναφοράς 5038
Τύπος Πώληση
Κατηγορία Καταστήματα
Περιοχή Ηράκλειο, Πόλη Ηρακλείου, Θέρισος
Εμβαδόν 55τ.μ.
Τιμή € 130.000
Τιμή / τ.μ. € 2.363,64
ΠΕΡΙΣΣΟΤΕΡΑ
Κατάσταση:
Καλή Κατάσταση
Εμβαδό (τ.μ.):
55
Όροφος:
Ισόγειο
Δείκτης ενεργειακής απόδοσης:
Ζ
Προσανατολισμός:
Γωνιακό
Ανανεώθηκε:
Πέμπτη, 12 Μαρ 2026
Επισκέψεις:
102